This summer was rich in bath-related discoveries (or at least in public announcements of discoveries). Two new sets of baths were announced, one underwater in Baiae, in the Bay of Naples, and the second in the southeastern Spanish city of Ilici/Elche. The third discovery is a mosaic from the Villa del Casale in Sicily depicting a set of sandals.
At Baiae, the thermal resort on the Bay of Naples where the elite of the time had their villas, part of the bathing sector of a villa submerged three metres below the surface was excavated. The most recognisable remains are those of a circular room with curved niches—a shape typical of a laconicum, or sweat room. The mosaic floor is preserved, as is the hypocaust underneath and the tubuli that served to heat the walls. The archaeologists of the Parco Archeologico dei Campi Flegrei are tempted to identify these remains as the baths of Cicero’s villa… (read more here)


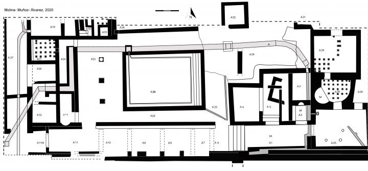
At Ilici, modern Elce, in southeastern Spain, the excavation of a large public bath building (named “Termas Orientales”) was completed after eight years of work by the University of Alicante. The complex, built during the 1st or 2nd c. AD and spreading over 1300 m², includes several heated rooms, latrines, and a large cold-water immersion pool (read more here and here).





Finally, the Villa del Casale, the large 4rd c. AD villa near Piazza Armerina in southeastern Sicily, has provided us with another fine mosaic. Excavations of the Southern Baths of the villa have brought to light a mosaic depicting a pair of sandals, next to a field of polychrome squares and a text in white letters on red background (unpublished so far). Nearby discoveries include a basin with a polychrome mosaic border and three marble columns with capitals. Sandals are an iconographic model already known through examples from North Africa, for instance at Timgad and Sabratha—both of which were accompanied by a text wishing the customers a good bath. To know more about the discovery, you can read more here and here.



Image credits: Parco archeologico dei Campi Flegrei; Universidad de Alicante/Proyecto Astero; Parco archeologico di Morgantina e Villa Romana del Casale.


Leave a comment